Как сделать хороший проект освещения

Как сделать хороший проект освещения

Качественный ремонт помещений — жилых, коммерческих и производственных — не обходится без изменения схемы освещения. Решая вопрос с подсветкой, нельзя забывать о том, что она не только должна быть привлекательной и создавать эстетичный световой интерьер, но и должна соответствовать нормативам. И здесь без качественного светотехнического проекта не обойтись. Ведь именно он определит и количество источников света, и их тип, и мощность, и расположение в помещении.

Зачем нужен проект системы освещения

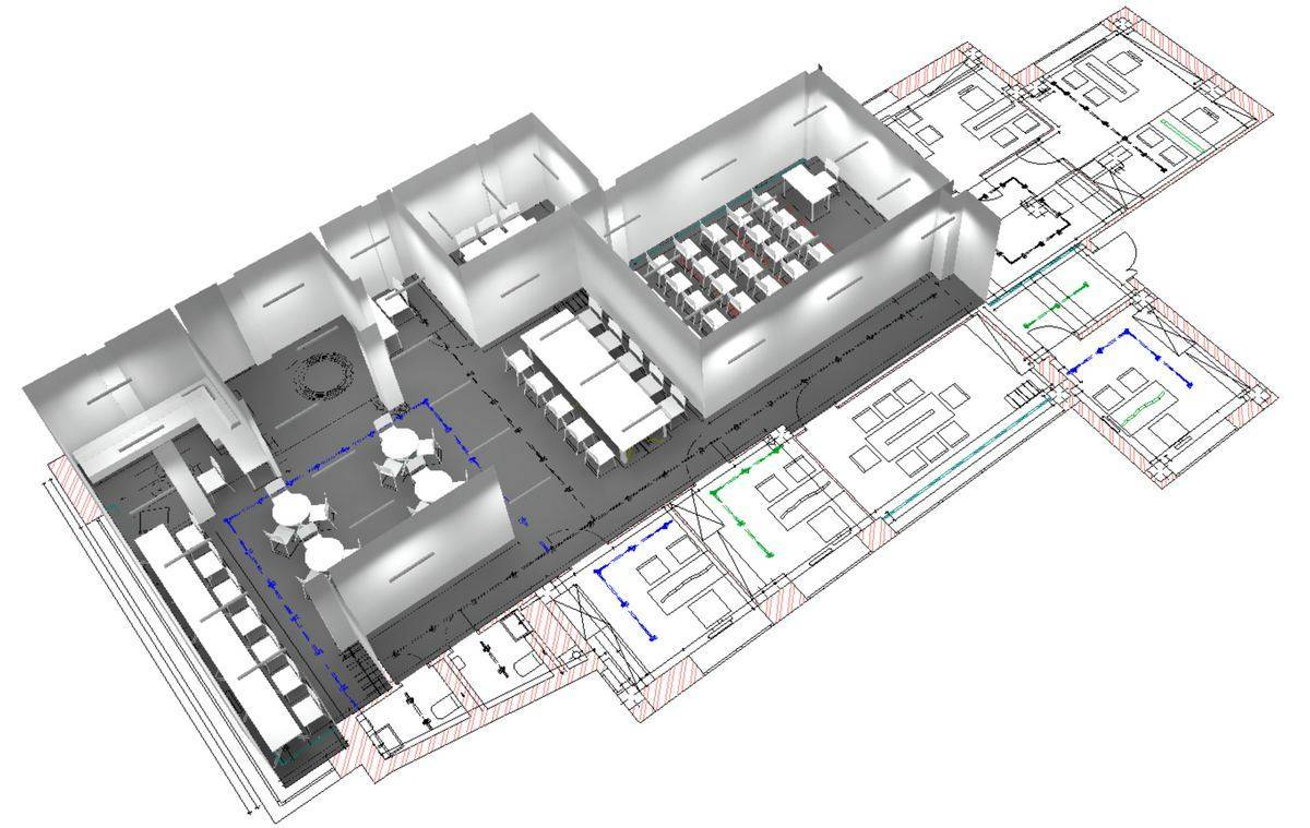
Невозможно построить комфортабельный жилой дом или удобный торговый центр без предварительного проектирования. Точно так же обстоит дело и с качественным ремонтом — без проекта его не сделать. ЭОМ (электроснабжение и электроосвещение) — важный раздел документации, в графической части которой обозначаются световые приборы, указывается их тип и мощность.

Монтажники, которые будут монтировать освещение, именно по ЭОМ расставят светильники и подключат их. И если проектировщик совершил ошибку, то в конечном итоге в помещении будет слишком темно или слишком светло, какие-то зоны могут остаться без подсветки, а какие-то окажутся пересвеченными. И это потребует изменения интерьера, что после отделки не всегда возможно.

Еще один важный нюанс использования проекта — безопасность эксплуатации освещения. Инженер учитывает не только расположение светотехнического оборудования (сертифицированного и безопасного) и органов управления, но схемы подключения. Это уберегает от перегрева и воспламенения проводки и светильников, выключателей и реле. Также это снижает вероятность утечки тока и выхода из строя светового прибора раньше расчетного срока.

Что такое проект освещения

Светотехнический проект — документ, который является составной частью ЭОМ или выпускается отдельно в соответствии с техническим заданием заказчика. Он адаптирует пожелания заказчика относительно освещения и учитывает множество факторов:

  • нормативные требования по освещению;
  • цветовую температуру осветительных приборов;
  • индекс цветопередачи ламп и светильников;
  • световой поток и его направление;
  • яркость свечения и многое другое.

Естественно, присутствует и экономическое обоснование, которое является балансом между бюджетом ремонта (строительства) и соответствием техническому заданию.

В готовой документации содержатся исчерпывающие сведения о светильниках и их типе, местах расположения. При необходимости приводится сценарное использование освещения. Все работы требуют тщательного расчета, поскольку без него реализовать подсветку даже небольшой жилой комнаты сложно. Например, в спальне необходимо предусмотреть общий (базовый), вечерний, дежурный и декоративный свет. И без качественного светотехнического расчета реализовать все сценарии сложно.

Самостоятельная разработка проекта освещения

Разумеется, вся информация о нормах освещенности находится в открытых источниках. Это касается всех объектов и помещений, освещение которых нормируется профильными стандартами. Количество нормативов довольно велико — нужно ориентироваться в СП 52.13330.2016, ГОСТ 21.607-2014 и 21.608-2014, СанПиН 2.2.1/2.1.1.1278-03 и 2.2.4.3359-16, а также множестве других. Однако в нормативах приводятся только общие требования по уровню освещенности и некоторые другие нормы. А вот схемы расположения, количество световых приборов и особенности их выбора не приводятся. И это сильно затрудняет работы по самостоятельному проектированию освещения.

Например, для освещения все той же спальни нормативом предусмотрен уровень освещенности 150 лк (150 люмен на 1 м2 площади по полу). Соответственно, для помещения площадью 12 м2 нужно подобрать светильник яркостью 1800 лм. Такую яркость обеспечит небольшой светодиодный светильник мощностью 18 Вт. Вот только он даст отличную освещенность по центру помещения, а объекты вдоль стен окажутся в тени. Вряд ли кого-то устроит такое решение.

Если же начать добавлять светильники в помещение, то при их одновременной работе неизменно будет разрушаться световой интерьер. К тому же такое решение окажется более трудозатратно и экономически необоснованно. Так стоит ли экономить?

Экономия — на проектировании или на освещении

Качественный проект освещения учитывает не только номинальную яркость источника света, но и фактическое значение (которое всегда ниже заявленного). Кроме того, в расчетах учитываются:

  • назначение помещения — для освещения туалета достаточно всего 50 лк, тогда как офисное пространство требует подсветки на уровне порядка 300 лк;
  • цветовая температура — для зоны отдыха рекомендуют освещение цветовой температурой 2700-3300 К, а для рабочей области температура цвета должна быть 3500-5700 К;
  • необходимость в локальном освещении — рабочий стол требует дополнительной подсветки;
  • угол рассеивания — для общего освещения нужен источник света с максимально широким углом, а для акцентной подсветки нужна лампа с концентрированным светом.

Параметров и переменных — множество. Но именно их учет делает систему не просто удобной, но и энергоэффективной. Заказчику проекта не придется тратить дополнительные средства на модернизацию освещения.

Что касается эксплуатации, то здесь все еще более интересно. Например, дизайнер может нарисовать красивый интерьер со множеством источников света в разных зонах помещения. Но фактически они оказываются избыточными, хотя на покупку и установку светильников пришлось потратить денег даже больше, чем при заказе светотехнического проекта. А при их одновременном включении растет энергопотребление, что выливается в дополнительные затраты на электричество.

Рассмотрим и обратную ситуацию — даже при включенном освещении некоторые зоны помещения остаются темными. Как итог — дополнительные расходы на покупку светильников, их установку и эксплуатацию.

По различным оценкам, экономия на освещении, выполненном по проекту, полностью окупает затраты на его создание уже в первые 2-4 месяца использования. А вот необоснованные затраты на освещение, которое никто не рассчитывал, будут только расти.

Что важно помнить про систему освещения

Чтобы освещение работало правильно, не требовало дополнительных расходов и было полностью безопасным, стоит заказать светотехнический расчет. Благодаря проекту будут соблюдены ключевые требования нормативов и стандартов.

В освещении стоит использовать только сертифицированные приборы и оборудование. Не стоит заменять их дешевыми аналогами, которые не проходили испытаний.

Проектные изыскания и расчеты стоит доверять только профессионалам, которые постоянно работают с освещением. Компания «Master LED» профессионально занимается разработкой освещения, выпускает и поставляет оборудование, создает с нуля и модернизирует существующие объекты. Свяжитесь с менеджером по телефону для консультации по вопросам проектирования и поставки оборудования или закажите обратный звонок через форму на сайте.

Выслушаем вашу задачу и дадим рекомендации по решению
Все статьи
Поделиться:
Позвоните нам 8-800-505-99-23
или оставьте заявку
Наши специалисты предложат несколько вариантов решений по освещению вашего объекта
Лапин Олег, руководитель отдела продаж

Опыт работы более 15 лет, реализовал свыше
1000 проектов

Другие статьи

23.12.2025
Освещение бассейна
Правильное освещение помещения бассейна решает сразу несколько задач. Оно обеспечивает безопасность посетителей, создает комфортные условия для плавания, подчеркивает дизайн и эстетику водного пространства. Современные системы позволяют не только равномерно осветить чашу, но и реализовать уникальные световые сценарии. Сложность проектирования заключается в сочетании электричества с влажной средой, поэтому все работы должны выполнять только профессионалы.
22.12.2025
Освещение витрин магазинов
Правильно организованное освещение магазинных витрин — мощный инструмент продаж. Подсветка привлекает внимание прохожих, выгодно представляет товар и формирует имидж бренда. Продуманный свет не просто подсвечивает продукцию — он создает настроение и мотивирует зайти внутрь. Качественное световое оформление способно увеличить трафик и средний чек.
21.12.2025
Освещение ЖКХ (жилищно-коммунальных хозяйств)
Освещение ЖКХ — это комплексная система, созданная для обеспечения безопасности, комфорта и энергоэффективности на объектах жилищно-коммунального хозяйства. Она охватывает все пространства общего пользования в многоквартирных домах и на прилегающих к ним участках. Грамотно спроектированное освещение жилищно-коммунального хозяйства не только выполняет утилитарные функции, но и формирует благоприятную визуальную среду для жителей.
20.12.2025
Освещение для боулинга
Грамотное освещение боулинг-центра является залогом его популярности. Оно создает неповторимую атмосферу, привлекает гостей и дарит им яркие эмоции. Современное оборудование позволяет не просто подсветить дорожки, а превратить игру в настоящее световое шоу, повышая доходность заведения.
20.12.2025
Освещение компьютерного клуба: каким должно быть
Правильное освещение в компьютерном клубе — основа комфортной и продуктивной среды для посетителей. Оно напрямую влияет на самочувствие, снижает утомляемость глаз, помогает сосредоточиться на игровом процессе или работе. Главная задача — создать равномерный свет без бликов и резких теней. Один из критериев, отличающих успешный компьютерный клуб – освещение, которое создает нужную атмосферу и комфорт. Расскажем, какое освещение необходимо организовать в таких помещениях, чтобы оно соответствовало всем нормативам и не приводило к проблемам со зрительным аппаратом.
19.12.2025
Каковы требования к освещению портовых кранов
Требования к осветительным приборам для портовых кранов включают повышенную механическую прочность, устойчивость к вибрациям и полную защиту от коррозии, вызванной соленым воздухом. Важно обеспечить соответствие нормам безопасности, достаточные уровни освещенности рабочих зон. Системы освещения должны быть надежными, долговечными, энергоэффективными. Правильный подбор светильников гарантирует безопасность персонала, сохранность грузов и высокую производительность в любое время суток.
Этот сайт использует cookie для хранения данных. Продолжая использовать сайт, Вы даёте согласие на работу с этими файлами.